Анкерные линии для работы на железнодорожных вагонах
Обеспечение безопасности при погрузке и разгрузке железнодорожных вагонов
- Вид работ: погрузка готовой продукции в железнодорожные вагоны.
- Система обеспечения безопасности: страховочная система.
- Риски: падение с высоты, малый запас высоты, отсутствие анкерных устройств.
Состав страховочной системы для работы на железнодорожной эстакаде
При выполнении работ по погрузке и разгрузке железнодорожных вагонов зачастую возникают ситуации, когда работники должны подниматься на вагон. В этом случае работник подвергается риску падения с высоты. Компания АльпИндустрия-ПРО реализовала установку страховочных систем для безопасной работы на вагонах с применением стационарно установленных горизонтальных анкерных линий и СИЗ втягивающего типа. Мы выполнили проектирование, установку и ввод в экплуатацию страховочной системы. В качестве соединительной подсистемы используется блокирующее устройство втягивающего типа Венто Рысь.
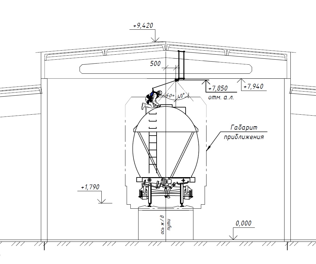
В данном решении применялась гибкая анкерная линия AlpSafe Flex, так как, по расчетам, в данных условиях она обеспечивала безопасную остановку падения с учетом небольшого запаса высоты. При организации страховочной системы важно оценивать необходимый запас высоты для безопасной остановки падения. Он складывается из роста работника, длины срабатывания соединительно-амортизирующей подсистемы и других факторов. В обязательном порядке необходимо учитывать глубину провисания троса анкерной линии при остановке падения. Детальные значения обычно указываются в эксплуатационной документации и зависят от длины линии, числа пользователей и других факторов. Если запас высоты недостаточный, следует использовать жесткие анкерные линии. Аналогичные решения могут применяться при работе на выосте по обслуживанию автомобилей, цистерн, автобусов и т.д.

Анкерная линия AlpSafe FLEX
К преимуществам такого решения следует отнести простоту использования. Требуется минимальная квалификация работника и минимальное число его действий. Работнику достаточно подтянуть к себе карабин СЗВТ за специальный шнур и присоединить его к элементу А на привязи. СИЗ втягивающего типа работает без воздействия работника. По принципу действия оно похоже на ремень безопасности в автомобиле. СЗВТ плавно втягивается и вытягивается при движении работника и блокируется при резком ускорении (падении) работника.
КАТАЛОГ:
Одной из особенностей организации страховочной системы в этой рабочей зоне было использование дополнительного блока для вытягивания шнура СЗВТ. Установленная конструкция работает по принципу флагштока и позволяет закрепить шнур для вытягивания СЗВТ на большей высоте, обеспечив большее его отклонение от вертикали. Благодаря такой конструкции исключается попадание шнура для вытягивания СЗВТ в габарит приближения вагона и случайное зацепление шнура за железнодорожный вагон и повреждение анкерной линии при движении вагона.

Вспомогательная конструкция для притягивания шнура СЗВТ
Плюсы:
- Простота эксплуатации.
- Возможность работы на малой высоте. Благодаря функции втягивания (автоматическая регулировка длины стропа) и быстрому срабатыванию СЗВТ, обеспечивается возможность работы на малой высоте.
- Возможность перемещения по всей длине вагона без дополнительных действий со стороны работника.
- Безопасное расположение, исключая попадание компонентов в габарит приближения.

Общая схема организации страховочной системы
Регламентирующие стандарты: ТР ТС 019/2011, ГОСТ Р ЕН 360, ГОСТ EN/TS 16415-2015, ГОСТ EN 795-2019.
|
Оформите заявку на сайте, мы свяжемся с вами в ближайшее время и ответим на все интересующие вопросы.
|
Заказать проект
|
